Small studio/accommodation to rear of property incorporating landscape and new works to existing residence.
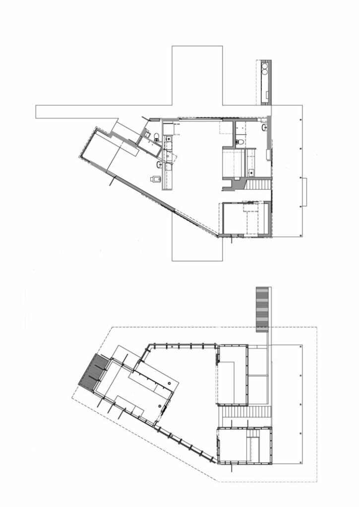
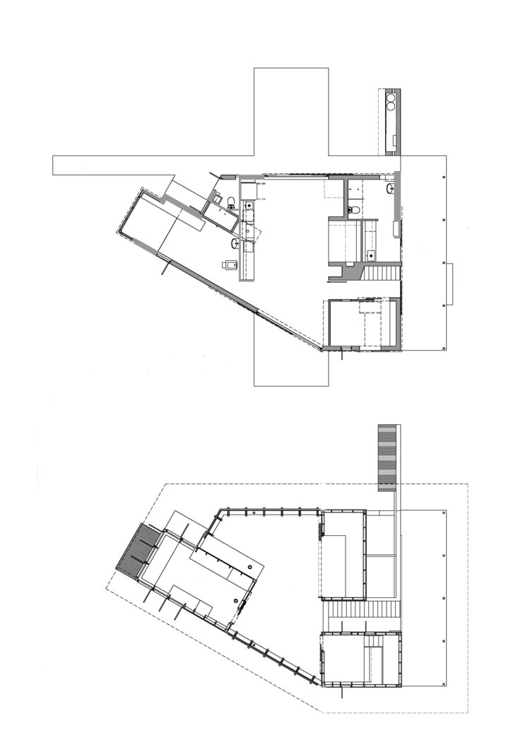
The Toodyay Shack sits on a re-viewed and re-configured 1/2 acre town site. The memory of the house is also re-viewed and re-configured. The climatic regression house plays with thresholds of what is internal and what is external. Sailing a boat and going camping metaphors are completely accurate in the way the house is activated and used depending the weather. The actualization of this manipulation that includes orientating house to climate is a brick cave with a timber fly roof.
Doors open up and you discover a wet room and bathhouse with fly roof over as ceiling and outside allowed to breathe with these internal spaces. The alternative is access to external stairs up to an external covered space with access to the three rooms off this communal area.
The tower, study and tea room, allow different perspectives of the landscape and proximity of the river and flood plain with the roof giving the sense of shelter and enclosure, even though there are no walls. The body is continually being turned to open up to the hills beyond. At the lower level you arrive through a door with no thresholds and into a multi functioning room of cooking/eating/resting/reading/listening with two large externally sliding doors that slide past their thresholds. The house moves pushes out against the lands contours while the climate run with the contours.














