Steve’s Hotel Apartments Nedlands Western Australia
Team | Paul Wakelam + Phil Griffiths (Philip Griffiths Architects) + Brandon Pratley + Alistair Ravenscroft
Completed | 2007-8
Builder | Murray McHenry Developments (owner builder)
Engineer | Wood & Grieve Engineers
Photographer | Paul Wakelam + Griffiths Architects
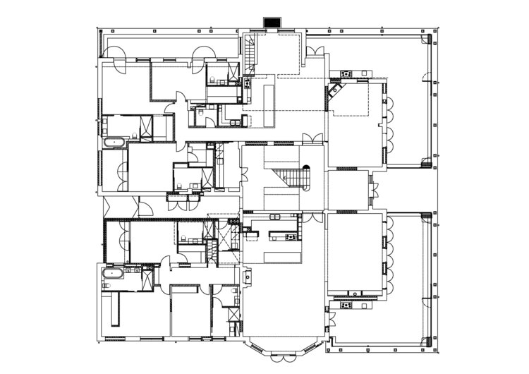
Conservation and Adaptation
Griffiths Architects were engaged to adapt the hotel for use as four substantial apartments.
Steve’s Hotel was a popular destination at the end of the former tramline and was one of a number of attractions for visitors that included the jetty and baths, tearooms and foreshore, with views over the Swan River.
A conservation plan was prepared together with a development plan to add new high density residential onto the site and to adapt the hotel for alternative use.
The place was entered with a high level of protection status on the City of Nedlands Municipal Inventory in 1999.

















