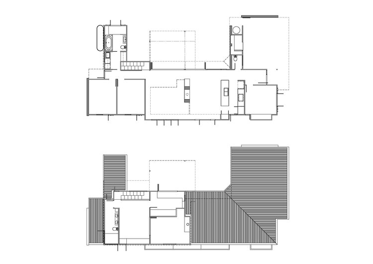
This economy-driven speculative project is for a narrow site in White Gum Valley, on a site which is a 20-minute walk from Fremantle central.
The home is for an expanded nuclear family, offering private spaces for reflection as well as internal and external communal spaces for celebration. The north facing, double height courtyard allows the warm climate to reach deeper parts of the floor plan, while other areas are protected as required. The front of the property, to the south, welcomes visitors and offers protected parking.

















