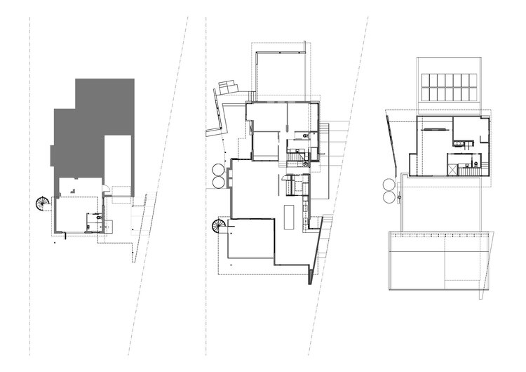
Floreat House Western Australia
Team | Paul Wakelam + Peter Tibbitt + Angus McBride + Ashley Stucken
Completed | 2014
Builder | D. Willis
Engineer | Steve Burdett & Associates
Photographer | Paul Wakelam + Angus McBride















Floreat House Western Australia
Team | Paul Wakelam + Peter Tibbitt + Angus McBride + Ashley Stucken
Completed | 2014
Builder | D. Willis
Engineer | Steve Burdett & Associates
Photographer | Paul Wakelam + Angus McBride















PWA would like to acknowledge that where-ever we are in this big Country, that we are with deep time and deep stories with a long history and future of people and place co-existing. We acknowledge the many lands on which we work and live and that the land underpins all life. Always was, Always will be. We pay our respects to their elders past, present and emerging.