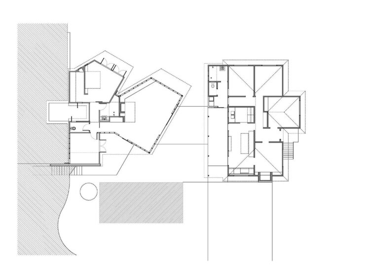
Toodyay House Extension Western Australia
Team | Paul Wakelam + Peter Tibbitt
Completed | 2016 Unbuilt
Builder | Owner Builder with Shane Braddock & Brian Gale
Engineer | Steve Burdett & Associates + Andrea Tate Landscape Architect
Photographer |














Toodyay House Extension Western Australia
Team | Paul Wakelam + Peter Tibbitt
Completed | 2016 Unbuilt
Builder | Owner Builder with Shane Braddock & Brian Gale
Engineer | Steve Burdett & Associates + Andrea Tate Landscape Architect
Photographer |














PWA would like to acknowledge that where-ever we are in this big Country, that we are with deep time and deep stories with a long history and future of people and place co-existing. We acknowledge the many lands on which we work and live and that the land underpins all life. Always was, Always will be. We pay our respects to their elders past, present and emerging.